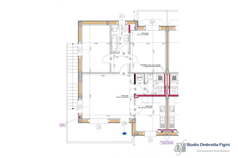
Trilocale di parzialmente arredato
Via Monte Generoso - FENEGRO' € 1'000/mensili - Spese condominiali € / 30
Tipologia:
Affitto
Superfice:
80m2
Locali:
3.0

